Cultural Center, Reinosa

Cultural Center, Reinosa

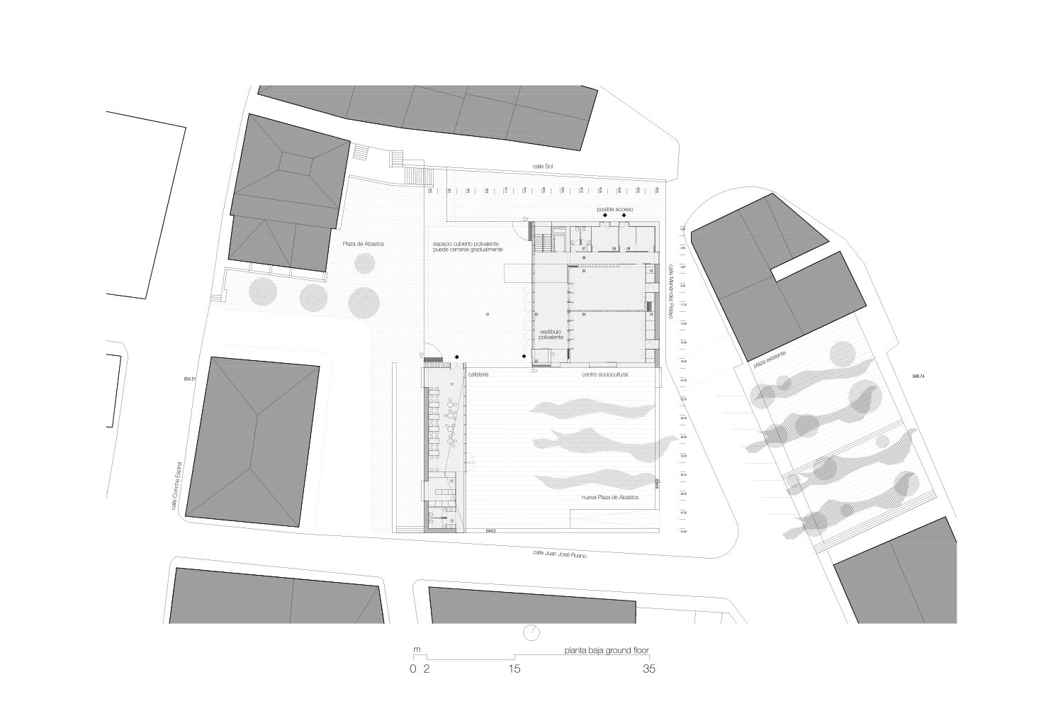
The project has a very clear aim: to improve the public space formerly used by an enclosed market and, at the same time, to support local cultural activities. Instead of filling the site again with a massive building, the building floats above the street level to give back a public space to the community, where outdoor activities and informal gathering can now take place. The wooden volume is being supported by the exhibition space and a flexible empty space, which act also as structural supports. A new connection to the upper level street is included in the equation, allowing new transitions through the interior of the new building, now transformed into a fully public indoor street.

2013

Credits
alcolea+tárrago

Centro Sociocultural, Reinosa

Se parte de una premisa única: mejorar un espacio urbano antes ocupado por el antiguo Mercado de Abastos, de gran impacto volumétrico. Es la mejor oportunidad de encontrar un mejor equilibrio entre el espacio ocupado y el espacio libre y abierto, más propicio para el uso homogéneo y libre. La propuesta genera un espacio cívico público parcialmente cubierto apoyado por la actividad del centro sociocultural: una pequeña cafetería, espacios polivalentes transformables y para asociaciones, y un centro de emprendimiento.

2013

Créditos
alcolea+tárrago