New Technologies Center, Aulesti

New Technologies Center, Aulesti

New Technologies Center, Aulesti

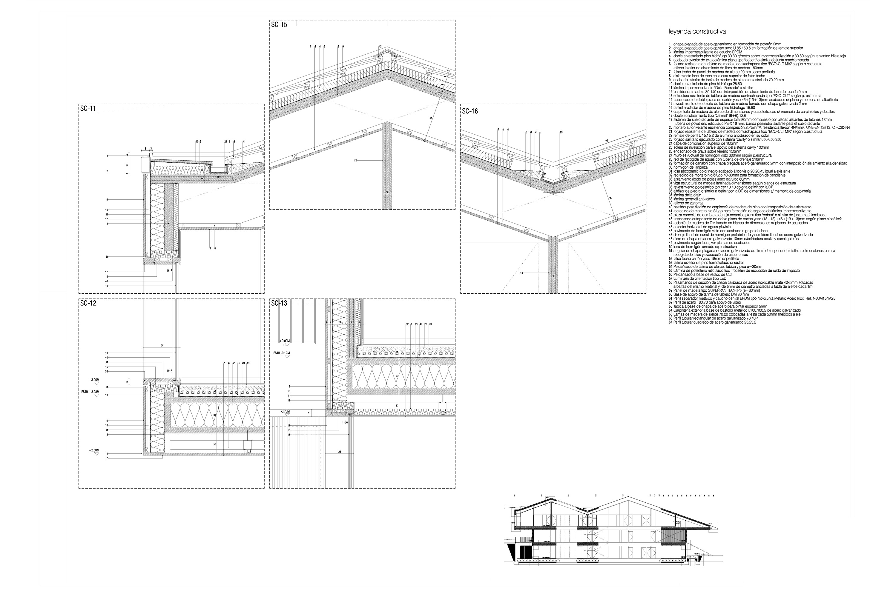
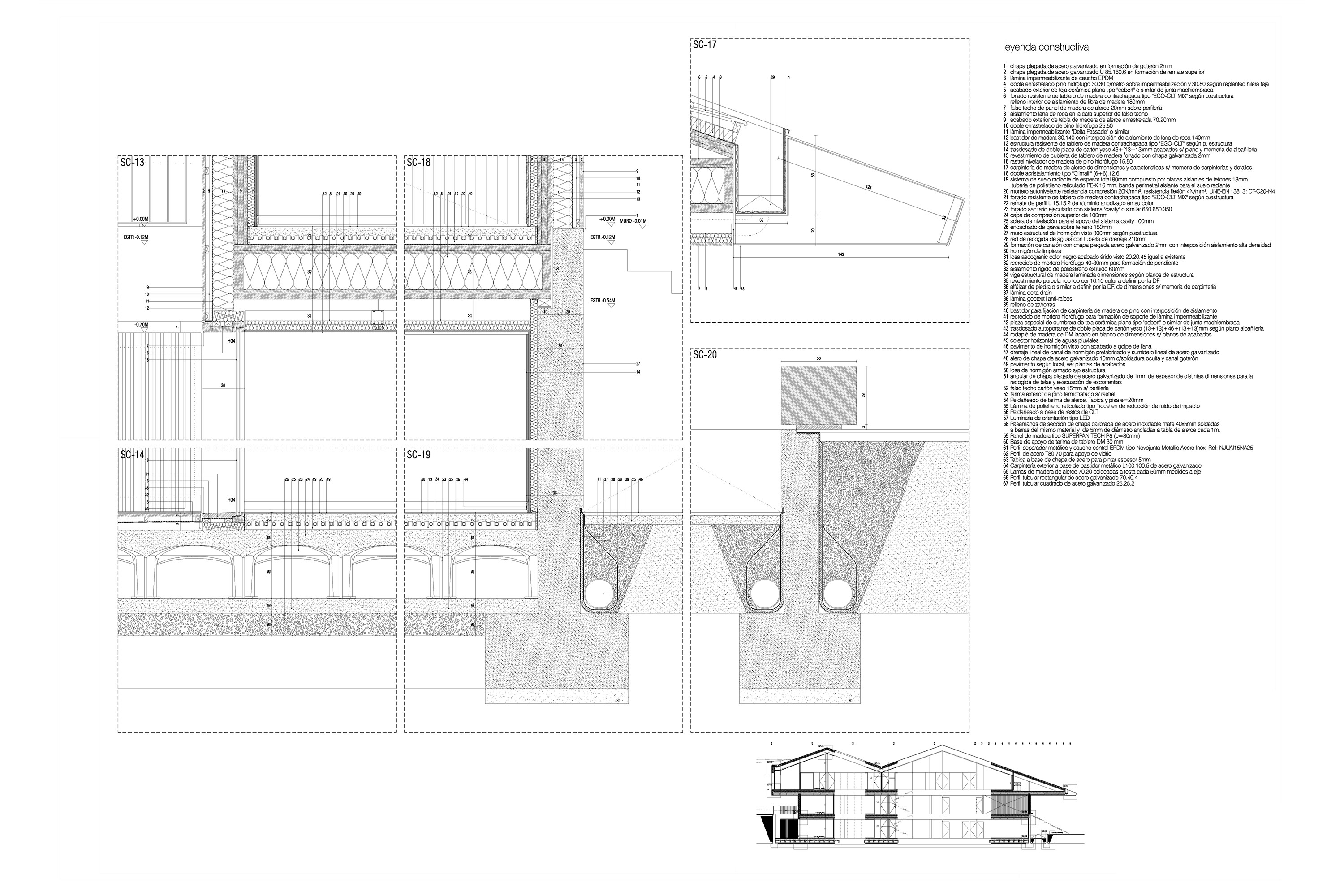
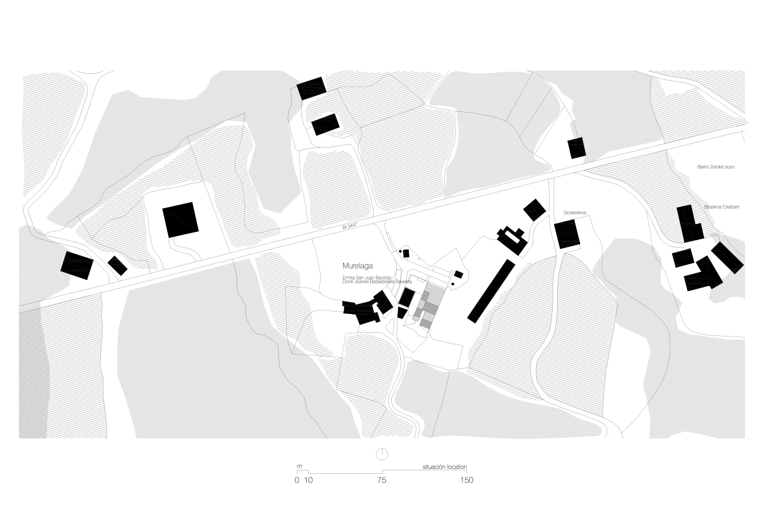
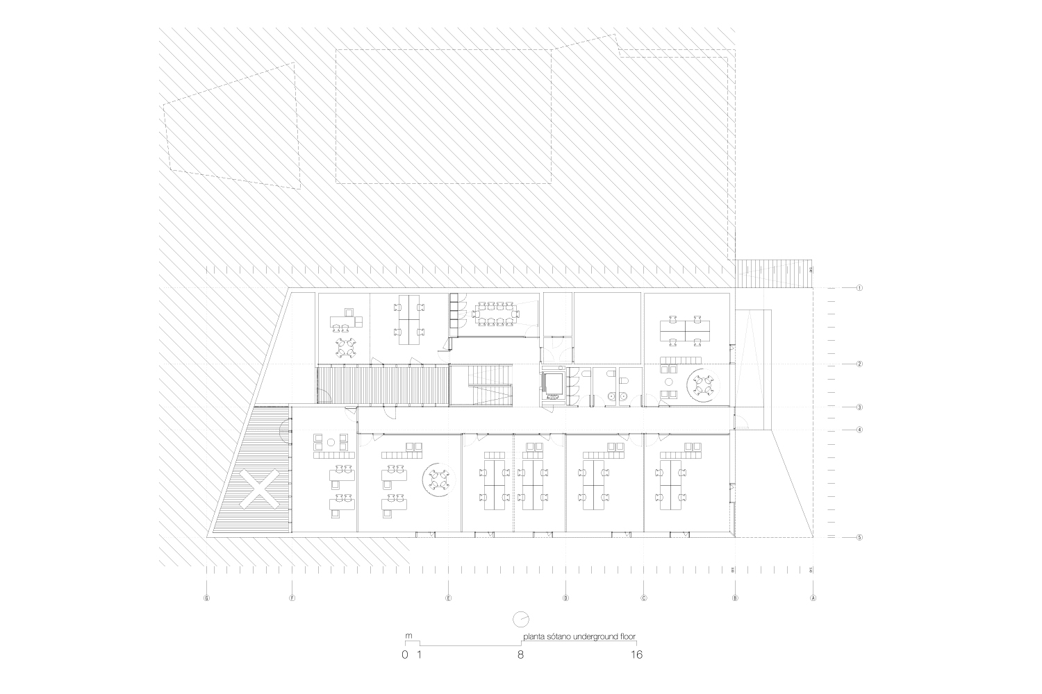
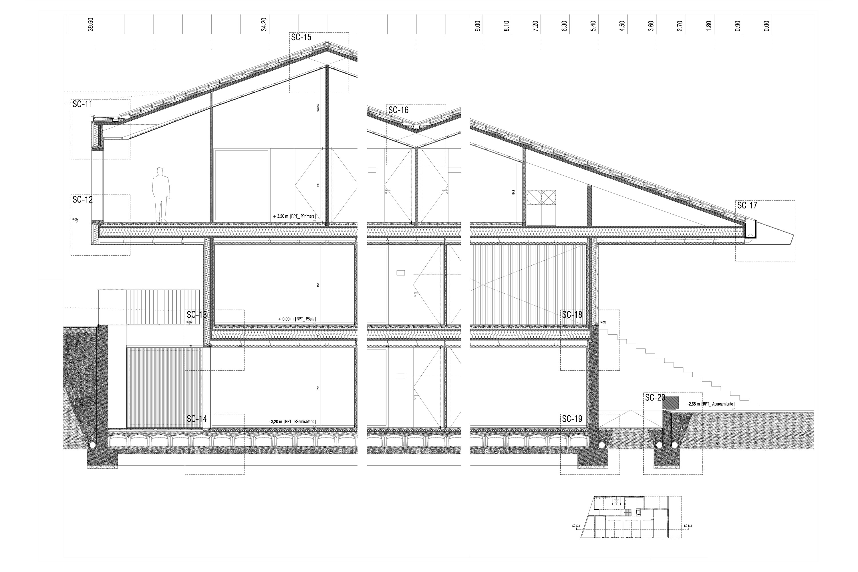
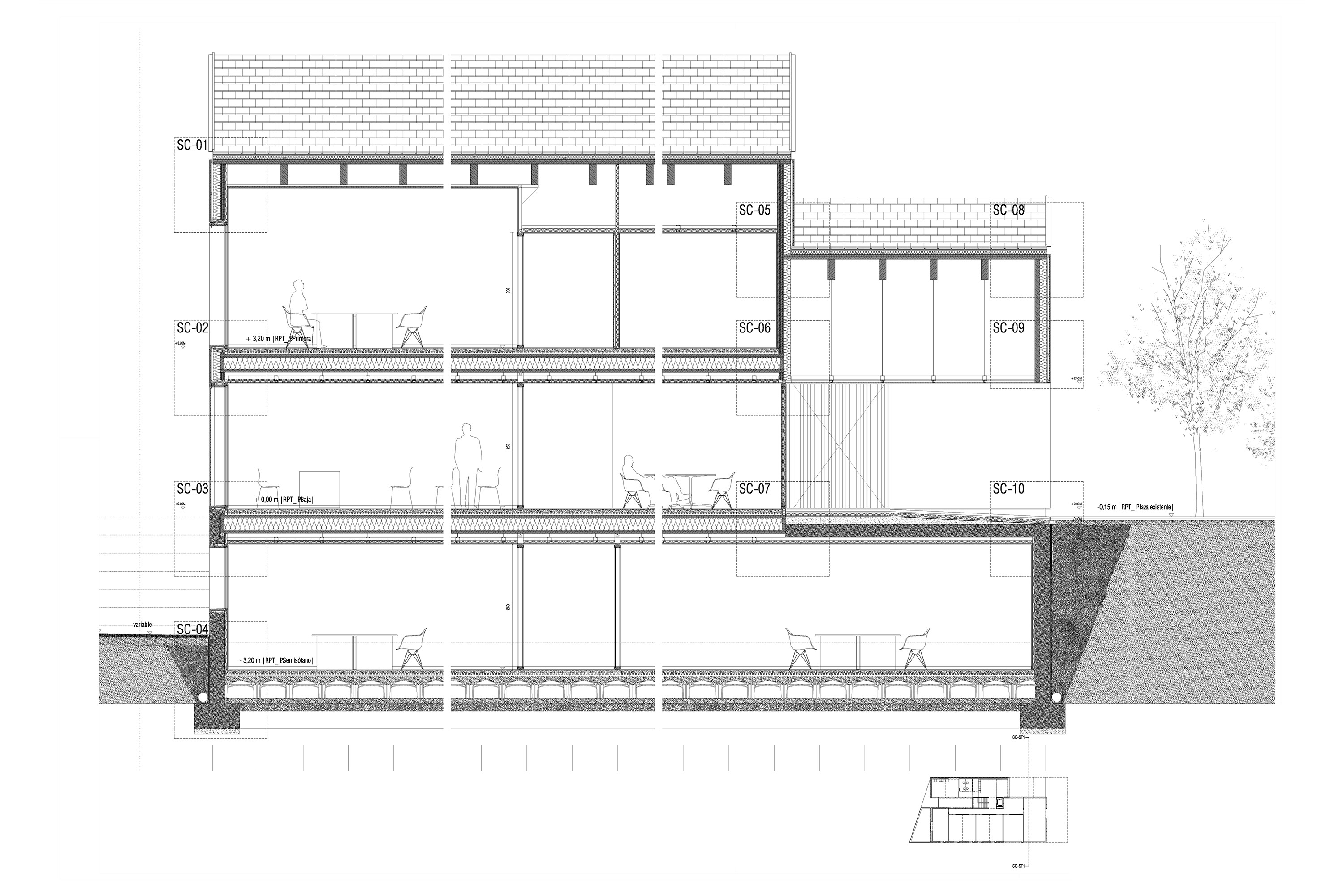
The project deals with a basic idea: to resolve and improve the immediate area of the little medieval chapel and the former sawmill. The intervention dialogues directly with the adjacent structures, accommodating to pre-existing scale already in the site. The New Technologies Center is a full wooden construction, using the local species, with an extreme degree of adaptability and change over time so the final users will make the space definitely yours. It points to the clear aim to bring together tradition and innovation through architecture, all in a very rural environment. The building brings forward some elements inherited from popular and anonymous architecture. The cantilevered porch opens to the south and the sun, allowing the landscape to interact freely with the interior.

2015 -

Awards
First Prize in Open Competition

Credits
alcolea+tárrago /  Lecumberri - Cidoncha

Centro de Nuevas Tecnologías, Aulesti

Una única premisa: mejorar el espacio inmediato de la ermita y de la antigua serrería, evitando el impacto volumétrico y la estridencia en un paisaje de notable calidad. Y esto procura hacerse, como otras veces, mediante una arquitectura sencilla, de contención expresiva y reminiscencias a los elementos de la arquitectura popular: se protege del clima y genera espacios cubiertos, se abre al sur para aprovecharse del sol, es confortable, y emplea materiales de producción local como la madera vasca de pino radiata. En definitiva, una arquitectura lírica, sin recursos desproporcionados, radicalmente sostenible y sensata, pero ambiciosa en sus objetivos. El empleo de los materiales locales y técnicas constructivas tradicionales la enraízan con su contexto inmediato y ajustan a la inversión, construyendo una eficaz y elegante propuesta en hormigón y madera.

2015 -

Premios
Primer premio en Concurso de ideas

Créditos
alcolea+tárrago / Lecumberri - Cidoncha