Headquarters and Auditorium, University of Málaga

Headquarters and Auditorium, University of Málaga

Headquarters and Auditorium, University of Málaga

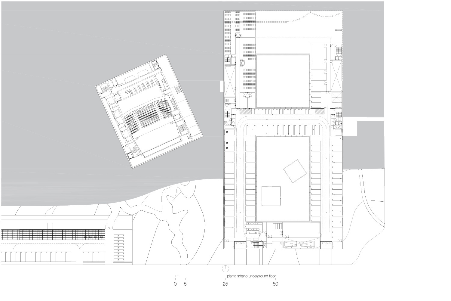
The Government Pavilion will centralize the administrative and executive workforce for several departments now spread through the campus, including the President, Provost and Vice-Provost offices. Therefore, the building needs a defined and representative character which will be inevitably associated to the future expansion of this prestigious institution. In addition, a second building will provide an 800-seat Auditorium –the largest in the city of Málaga– to host academic and public with impact beyond campus. The main building is designed by inhabiting the perimeter of two extensively vegetated patios –courtyards–, with local species which will provide a semi-private and fresh oasis, as well as controlling the temperature, humidity and views to the open field of workspaces with a strong component of flexibility. The Auditorium incapsulates a wooden box with strategic openings to the distant views as well as to the surrounding park. Both volumes are massively built with white local marble, Macael, and engage in a lyric and classic dialogue where materiality, scale and proportion are the basic elements to provide am ambitious architecture environment although silence and rigor.

2018-2021

Awards
International Architecture Awards. Honorable Mention. The Chicago Athenaeum, 2022
XVII Malaga Award. First Prize. Institute of Architects and City of Málaga, 2022.
Award COAVN2022 Institute of Architects of the Basque Country and Navarre, 2022
XXXIV Macael Award / White Macael, 2021
First Prize in Open Competition

Exhibitions
Collective Exhibition ‘The City and the World’, Chicago Athenaeum, Athens, September 2022
Collective Exhibition ‘Premios COAVN 2022”, Pamplona, June 2022

Credits
alcolea+tárrago / Roberto Ercilla / Lecumberri - Cidoncha

Photos: Javier Callejas

MONOGRAPH

Pabellón de Gobierno y Paraninfo, Universidad de Málaga

El Pabellón de Gobierno reunirá los distintos servicios administrativos de la Universidad de Málaga y las oficinas del rectorado, ahora localizados en distintos edificios. Se añade un paraninfo de 800 asientos y los espacios exteriores que incluyen un vasto jardín, un aparcamiento y un auditorio al aire libre. Se plantean dos volúmenes rotundos y simples de mármol blanco. El pabellón de gobierno se articula alrededor de dos patios de vegetación densa, un interior protegido dominado de sombra y frescor naturales, al que vuelcan todos los espacios administrativos, con capacidad representativa e icónica. Los usos se resuelven utilizando el perímetro como banda de servicios y liberando el resto para áreas de trabajo abiertas y transformables según las necesidades. Se busca, como siempre, una arquitectura sencilla, de contención expresiva y reminiscencias a los tipos elementales de la arquitectura.

2018-2021

Premios
International Architecture Awards. Mención Honorífica. The Chicago Athenaeum, 2022
XVII Premio Ciudad de Málga. Primer Premio. Colegio Arquitectos Málaga, 2022.
Premio COAVN2022, Colegio de Arquitectos Vasco-Navarro, 2022
XXXIV Premio Macael / Blanco Macael, 2021
Primer premio en Concurso de Ideas

Exposiciones
Exposición Colectiva ‘The City and the World’, Chicago Athenaeum, Atenas, Septiembre 2022
Exposición Colectiva ‘Premios COAVN 2022”, Pamplona, Junio 2022

Créditos
alcolea+tárrago / Roberto Ercilla / Lecumberri - Cidoncha

Fotografía: Javier Callejas

MONOGRAFÍA