Flaviobriga Music School, Castro Urdiales

Flaviobriga Music School, Castro Urdiales

Flaviobriga Music School, Castro Urdiales

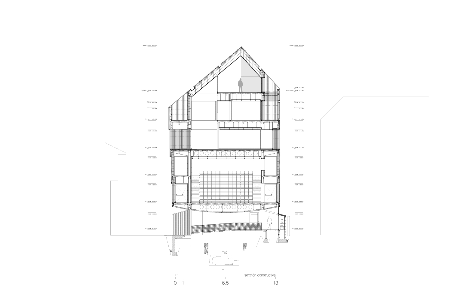
The building is designed to be gently floating over the existing Roman ruins of Flaviobriga, in order to hold a Music School at the same time that allows to keep studying the archeological site. The project is a sort of a wooden massive volume which brings back the local memory of Castro Urdiales, a town close to Bilbao whose history is tied to the construction of wooden fishing boats. With a titanic structural effort, the volume only touches the ground in a few supports on both far ends, allowing continuous transparency towards the existing interior courtyard at the back of the site. The street level is a public interpretation center devoted to study and disseminate the ancient history of the city. The second floor provides an auditorium to be shared by the municipality and the music school at the upper levels. The building seeks to be effective and radical in its approach, although humble and sensitive in its materialization, and the interior spaces are flexible enough to be able to transform into other program needs in the future. The façade, covered in dark grain wood, hides several courtyards and interior voids which in addition to provide natural light, will allow the music to gently escape over the inner city. 

2019 -

Awards
First Prize in Open Competition

Credits
alcolea+tárrago

Escuela de Música Flaviobriga, Castro Urdiales

El edificio cubre los restos arqueológicos de época romana, Flaviobriga, y flota sobre ellos como un casco de madera que recupera la tradición de constructores de barcos de Castro Urdiales. El volumen se apoya en dos líneas estructurales paralelas a la calle que concentran apoyos puntuales en los extremos para no interferir ni visual ni físicamente con la labor arqueológica. Se persigue que puedan observarse las ruinas sin trabas desde la misma calle, incorporándolas a la escena urbana. El programa se ordena del siguiente modo, el Centro de Interpretación y los accesos en planta baja; el auditorio-teatro en la primera y segunda planta; y la Escuela municipal de música y conservatorio en tercera, cuarta y bajo cubierta. El edificio procura ser discreto y eficaz, evita ser inoportuno, pero sin renunciar a la calidad de los materiales empleados y a detalles constructivos singulares. La fachada, en madera de grano oscuro, oculta varios patios y vacíos interiores que, además de procurar luz natural, permite que la música escape suavemente sobre el vecindario.

2019 -

Premios
Primer premio en Concurso de ideas

Créditos
alcolea+tárrago