Restoration of XVIth Century Hospital into Cultural Center in Burgos

Restoration of XVIth Century Hospital into Cultural Center, Burgos, Spain

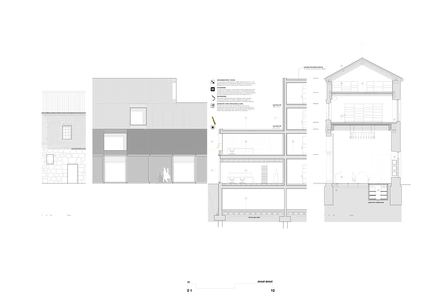
The restoration of the Hospital Concepción in Burgos brings back the original architectural qualities of this 16th and 17th century building, which has received many fragmented and not cohesive interventions during the past centuries. The new program components –university cultural center and regional historic archive– are inserted with elements which could be eventually removed or easily transformed, in an effort to acknowledge the temporality of the new contemporary parts in opposition to the ever-lasting serenity of the historic context. The new extension, built with brick and local stone, accommodates to the historic building, by following its alignment, dimension modularity and overall composition principles. It aims for a calmed and subtle dialog while contributing to inserting an abstract and contemporary volume addressing both, the historic context, the cloister, and the public park.

2022

Credits
alcolea+tárrago
Roberto Ercilla
Jerezpiedra arquitectos

Archivo Histórico y Contenedor Cultural en Hospital La Concepción, Burgos

La propuesta trata de poner en valor las cualidades arquitectónicas del Hospital del siglo XVI y XVII, devolviéndole a un estado material consolidado en el que los nuevos usos se conciben como muebles de madera reversibles. La ampliación, que se ajusta a las condiciones impuestas por la normativa, procura no desvirtuar la esencia original del hospital sino, al contrario, potenciar su atmósfera sobria. Se alteran cuidadosamente las normas, mediante matizaciones en sus alineaciones y retranqueos, el estudio de fondos visuales y su volumetría. Se busca un diálogo sosegado con el contexto empleando los materiales ya existentes –piedra caliza local y ladrillo– para ofrecer una solidez y contundencia compositiva.

2022

Créditos
alcolea+tárrago
Roberto Ercilla
Jerezpiedra arquitectos