Innova Business Center, Pineda de Mar

Innova Business Center, Pineda de Mar

Innova Business Center, Pineda de Mar

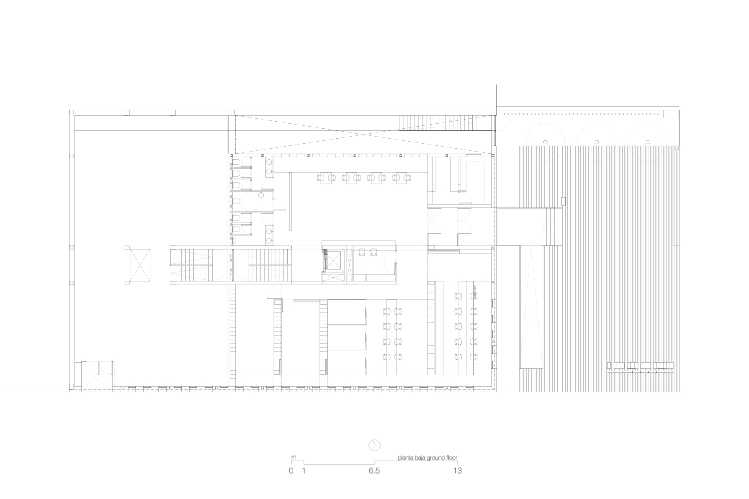
The debate about the quality of our work environments has been addressed in different and even opposite ways since industrial revolution. The need of accommodate new programs to host new and changing business models force the stablished types to evolve and become more flexible than ever. This project defines functional and performative bands of program, as a flexible container. This black building dialogues with the semi-industrial context as a call to neutrality, elegance and lack of casual expression. Scale is addressed by the characterization of the openings in the main facades and the creation of an introspective courtyard.

2004-2006

Awards
First Prize in Open Competition

Publications
1000x European Architects, Verlagshaus Braun, Berlin, 2007
European Collection of Offices, Chris van Uffelen, Braun Publishers, Stuttgart, 2010
1000x, Braun Publishing AG, Berlin, 2012


Credits
alcolea+tárrago / J. A. Medina

Surveyor: Maurici Sadurní - Ajuntament de Pineda de Mar

Centro de Empresas ‘Innova’, Pineda de Mar

El debate a propósito de los espacios de trabajo ha sido desde los inicios de la revolución industrial uno de los campos arquitectónicos de mayor actividad. La necesidad de albergar nuevos usos impuestos por las actividades incipientes ha dado lugar a tipologías que han enriquecido sobremanera tanto la propia disciplina como las ciudades que cobijan estas arquitecturas. En este sentido, es fácil recordar ciudades y edificios que han ejemplificado brillantemente estos avances. El creciente avance de la instrumentalización administrativa y sobre todo la aparición de la informática junto con el progreso social propio de nuestros tiempos han transformado completamente el modo de concebir estos espacios para el trabajo. La solución que se ha adoptado sigue al pie de la letra las diferentes divisiones de áreas de programa que se proponen para luego trasladarlas a «franjas funcionales» en las plantas. La resolución de todo el edificio como una gran «caja negra tecnológica» pretende cualificar esta dotación municipal de neutralidad, elegancia y rotundidad.

2004-2006

Premios
Primer Premio en Concurso de Ideas

Publicaciones:
1000x European Architects, Verlagshaus Braun, Berlín, 2007
European Collection of Offices, Chris van Uffelen, Braun Publishers, Stuttgart, 2010
1000x, Braun Publishing AG, Berlín, 2012


Créditos
alcolea+tárrago / J. A. Medina

Dirección de Obras: Maurici Sadurní - Ajuntament de Pineda de Mar