House MP, Sesma

The commission began as a private competition, in which our office was selected because of our attitude towards the project and the commitment to build the best house with a small budget in an extreme sermi-urban site.
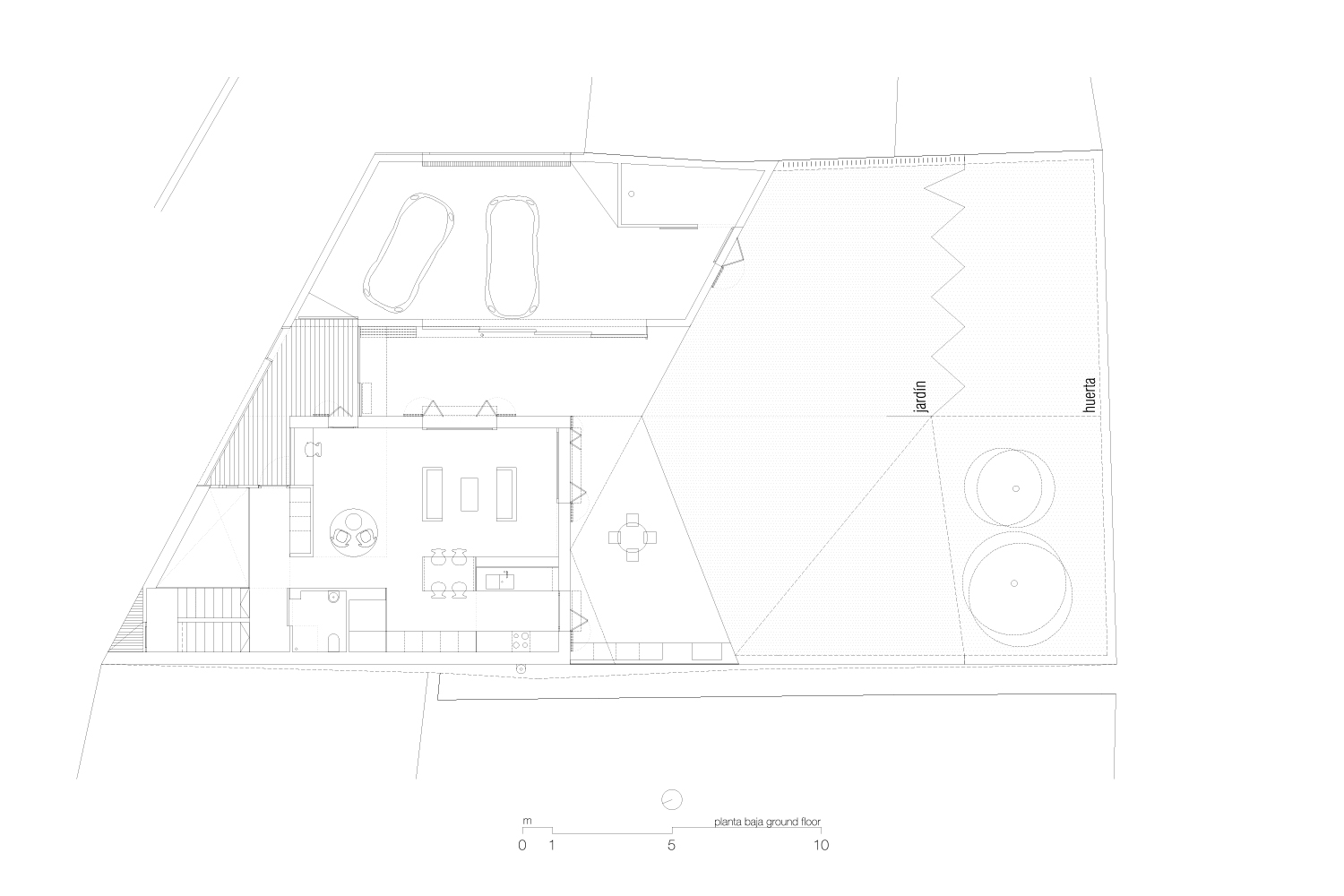
The program is a conventional single house for a young couple with two kids; including a garage for two cars and a small garden with orchard. The house is a monolithic volume, which emphasizes its archetypal geometry using concrete and stained basic pinewood. Any gesture is made to the better orientation and views, and to clear the plot as much as possible for the small garden and an orchard to plant some vegetables and fruit trees. The house, therefore, is set at the highest level of the site. It follows a restrictive regulation on alignments and height. But this also permits to dominate the southern view towards the grain fields and smooth foothills of the River Ebro.
The garage is separated from the main volume to close the north limit, creating a patio access. Large sliding doors in pine board communicate the garage with garden, and even opening it completely to the street.
The building is built in reinforced concrete, which unifies structure, the finishing and texture. The windows have shutters in stained pine board, very common in the popular architecture of the area. The thermal inertia of the concrete volume as well as an under-floor heating and cooling system using geothermal energy provide a high efficiency in a quite extreme climate –very cold in winter and very hot in summer– without resigning to large openings for a maximum use of natural light.

2010-2013

Awards
Selected in Exhibition ‘Arquitectura en Positivo’, CSCAE
Selected Spanish Architecture Award, CSCAE, 2013
Award COAVN 2013
Selected for Volvo Marketing Campaign Europe 2018

Publications
VAN UFFELEN, Chris (ed.), Concrete. Pure. Strong. Surprising, Braun Publishing, 2015, pp.162-165
KRAMER, Sibylle (ed.), Villas. Superb Residential Style, Braun Publishing, 2013, pp.220-223
Premios COAVN-ehaeo sariak 2013, Colegio Oficial de Arquitectos Vasco-Navarro-Euskal Herriko Arkitektoen Elkargo Ofiziala, San Sebastian, 2013, pp.28-33
Revija Hise, n.77, maj 2013, Ljubljana, pp.96-97
Oris magazine, n.81, year XV, 2013, pp.122-129
Arquitectura Viva, n.154, 7-8/13, pp.20-23
Suplemento Ortzadar 11.05.2013

Credits
alcolea+tárrago

Photos: Iñaki Bergera / Juan Rodríguez

Casa MP, Sesma

El proyecto tiene su origen en un concurso privado en el que se valoró nuestra actitud para explorar la posibilidad de construir una vivienda de máximos con un presupuesto ajustado y en un solar complicado. Y no menos importante, la implicación y compromiso, quizá más allá de lo razonable, para proponer sucesivas aproximaciones al proyecto –hasta cinco proyectos– antes de la solución definitiva. El programa responde a las necesidades convencionales de una vivienda para un matrimonio joven con dos hijas, un garaje para dos vehículos y un huerto. La solución final opta por un volumen sencillo de carácter monolítico en el que se acentúa su geometría arquetípica mediante el uso intensivo de hormigón visto entablillado y tabla de pino. La vivienda, por tanto, se sitúa en la cota más elevada del solar, ajustándose a las alineaciones romboidales exigidas por normativa; y para dominar las vistas meridionales hacia los campos de cereal y las suaves estribaciones montañosas de la vega del Ebro. Entre garaje y vivienda se crea un patio de acceso flanqueado por puertas correderas de gran tamaño que abren la cochera al jardín y la calle. La solución constructiva además de proporcionar la textura del sistema de encofrado tradicional mediante tabla, reúne estructura y acabado. La gran inercia térmica del volúmen de hormigón, y el suelo radiante y refrescante mediante geotermia permiten una muy alta eficiencia energética de la vivienda en un clima extremo sin dejar de lado la radicalidad del volumen y el máximo aprovechamiento de la luz natural.

2010-2013

Premios
Seleccionada en la muestra ‘Arquitectura en Positivo’, CSCAE
Obra seleccionada para el Premio de Arquitectura Española, CSCAE, 2013
Premio COAVN 2013
Seleccionada para campaña Volvo Europa 2018

Publicaciones
VAN UFFELEN, Chris (ed.), Concrete. Pure. Strong. Surprising, Braun Publishing, 2015, pp.162-165
KRAMER, Sibylle (ed.), Villas. Superb Residential Style, Braun Publishing, 2013, pp.220-223
Premios COAVN-ehaeo sariak 2013, Colegio Oficial de Arquitectos Vasco-Navarro-Euskal Herriko Arkitektoen Elkargo Ofiziala, San Sebastian, 2013, pp.28-33
Revija Hise, n.77, maj 2013, Ljubljana, pp.96-97
Oris magazine, n.81, year XV, 2013, pp.122-129
Arquitectura Viva, n.154, 7-8/13, pp.20-23
Suplemento Ortzadar 11.05.2013

Créditos
alcolea+tárrago

Fotografías: Iñaki Bergera / Juan Rodríguez