Ortiz de Zárate, Vitoria

Ortiz de Zárate, Vitoria

Ortiz de Zárate, Vitoria

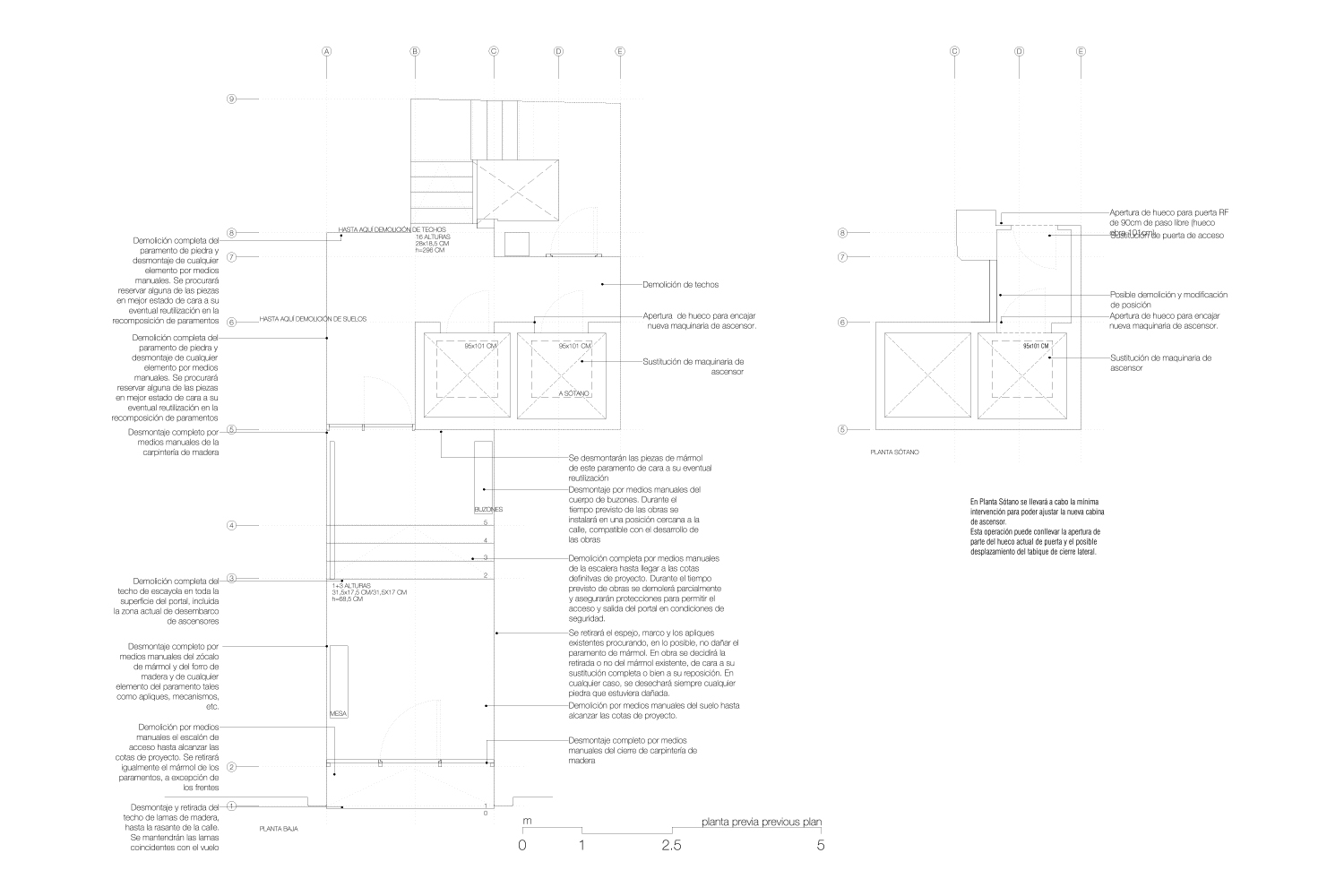
This is nothing but a small exercise to transform architecture scale. This project, very humble and small in size, adapts the entrance of a housing building to improve its accessibility providing a sense of domesticity frequently forgotten in the public access to public housing. The requirements are simple: lower the entrance level down to the street to allow a new boarding to the main elevator, now adapted to elderly and ADA; while providing a perceptive transformation of the real size of the space. The hall with mailboxes is contained within a wooden and glass container, granting access to a magic box of mirrors which multiplies the space. The tall doors and mirrors define an ambiguous perceptive space, whose floor, walls and ceiling are made up of rough-sawn travertine which extends beyond its physical boundaries.

2013

Credits
alcolea+tárrago

Photos: Rubén P. Bescós

Ortiz de Zárate, Vitoria

Esta obra, muy modesta y de muy pequeñas dimensiones, adapta un portal de viviendas para mejorar su accesibilidad aportando la sensación de domesticidad que a menudo se pierde en estas nuevas intervenciones. La solución es sencilla: se baja la cota del portal hasta el nivel de la calle y se propone un nuevo embarque a un ascensor adaptado, mejorando lo que antes debía hacerse superando un tramo de escaleras y desde un espacio escondido, oscuro y abigarrado. La cancela de acceso incorpora los buzones, y al igual que la llegada al ascensor, se conforma totalmente en madera de iroco y piso de felpudo de coco natural. El espacio intermedio interior no es más que un sencillo ejercicio para transformar la escala. Las puertas de gran tamaño y el uso de espejos de gran dimensión configuran un espacio interior de percepción ambigua y doble, en el que suelo, paredes y techo se resuelven con la misma piedra de mármol travertino aserrado.

2013

Créditos
alcolea+tárrago

Fotografías: Rubén P. Bescós