Edificio Central, Pamplona

Edificio Central, Pamplona

Edificio Central, Pamplona

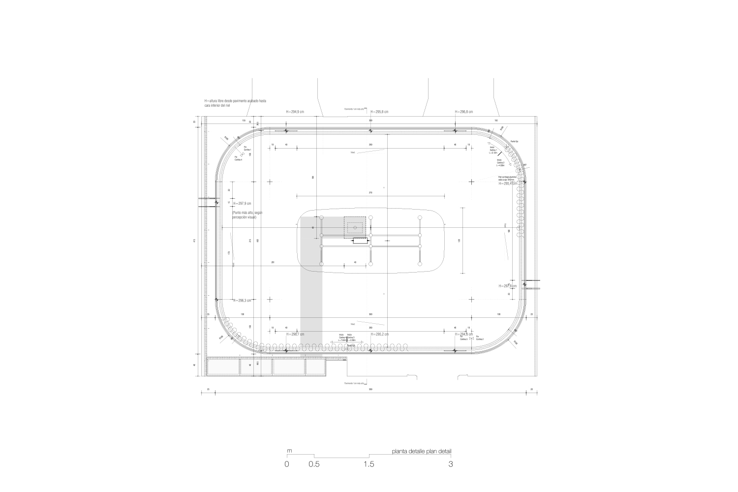
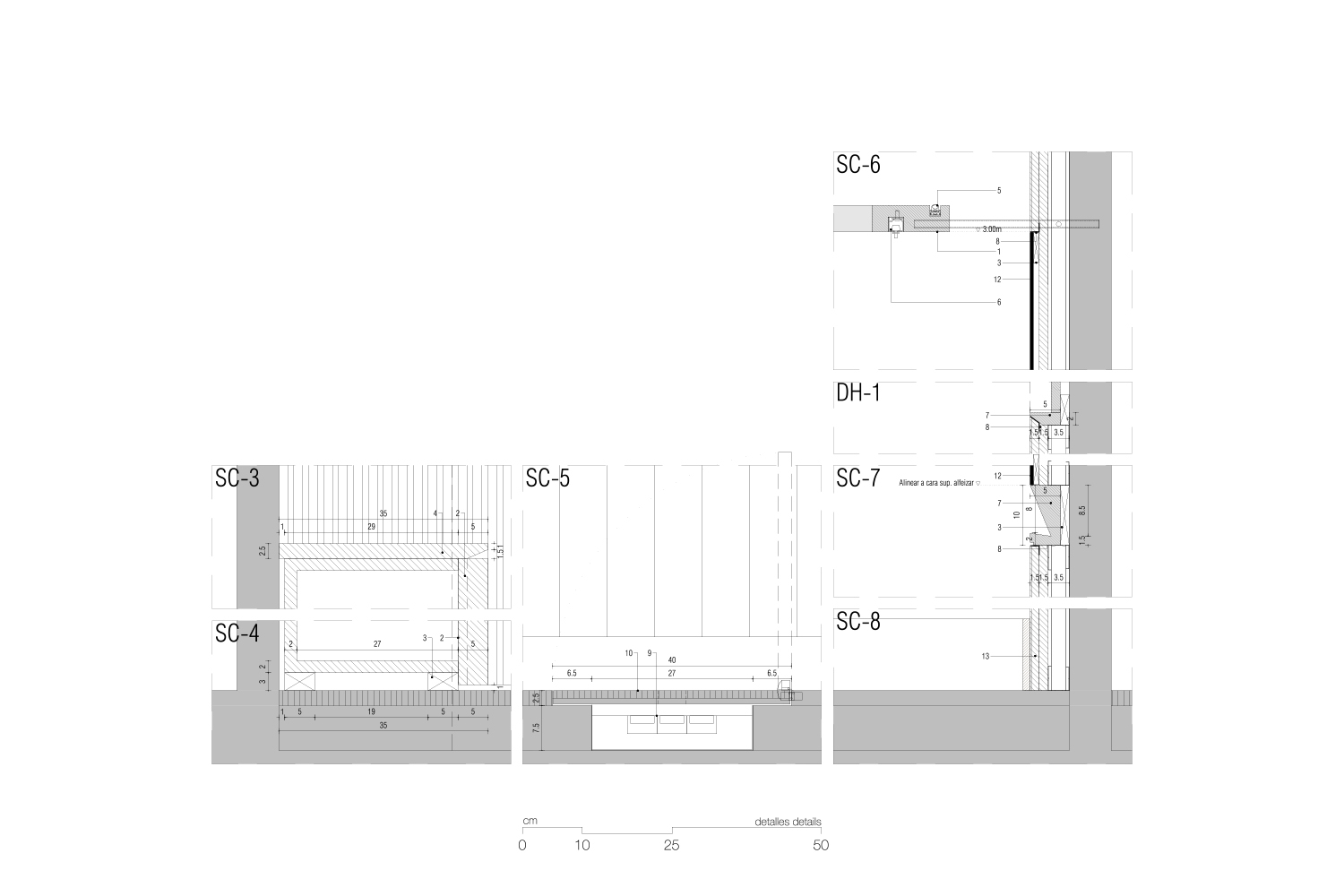
Several small-scale interventions aim to bring back a defined and uniform character to the main and representative building at the University of Navarra in Pamplona. The projects are diverse in scope and program, such as videoconference rooms or meeting spaces, and define a common architecture language where materiality and silent gestures provide the necessary spatial quality for a building of this kind.

2019 -

Credits
alcolea+tárrago

Photos: Rubén P. Bescós

Edificio Central, Pamplona

Como parte de un proyecto más ambicioso sobre distintos espacios del Edificio Central de la Universidad de Navarra en Pamplona, se ensayan varias pequeñas intervenciones, distintas en programa y escala. Desde salas de videoconferencias o aulas hasta un meeting point. Maderas estriadas, soluciones textiles y detalles concisos, sencillos y austeros para devolver el protagonismo a los espacios originales.

2019 -

Créditos
alcolea+tárrago

Fotografías: Rubén P. Bescós