House GP, Olloqui

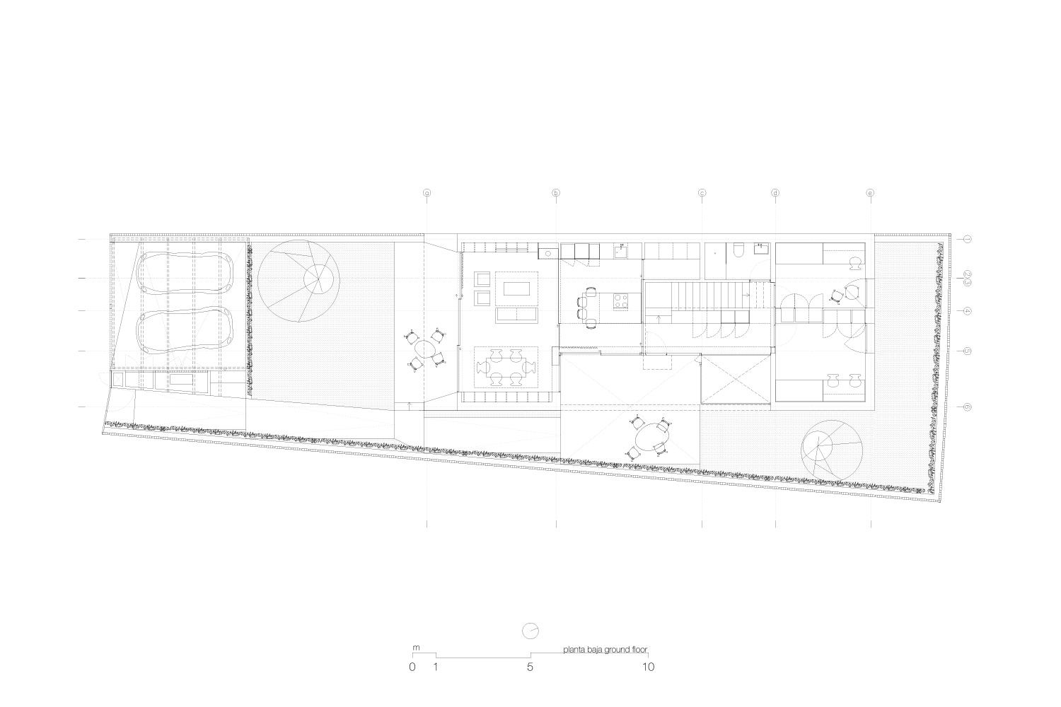
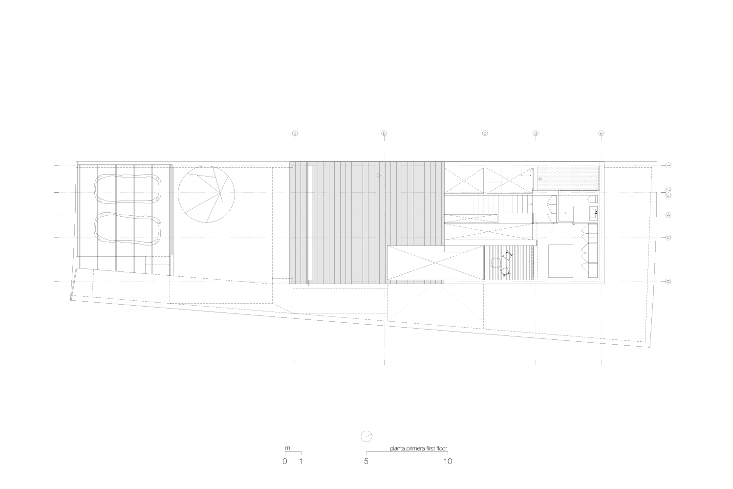
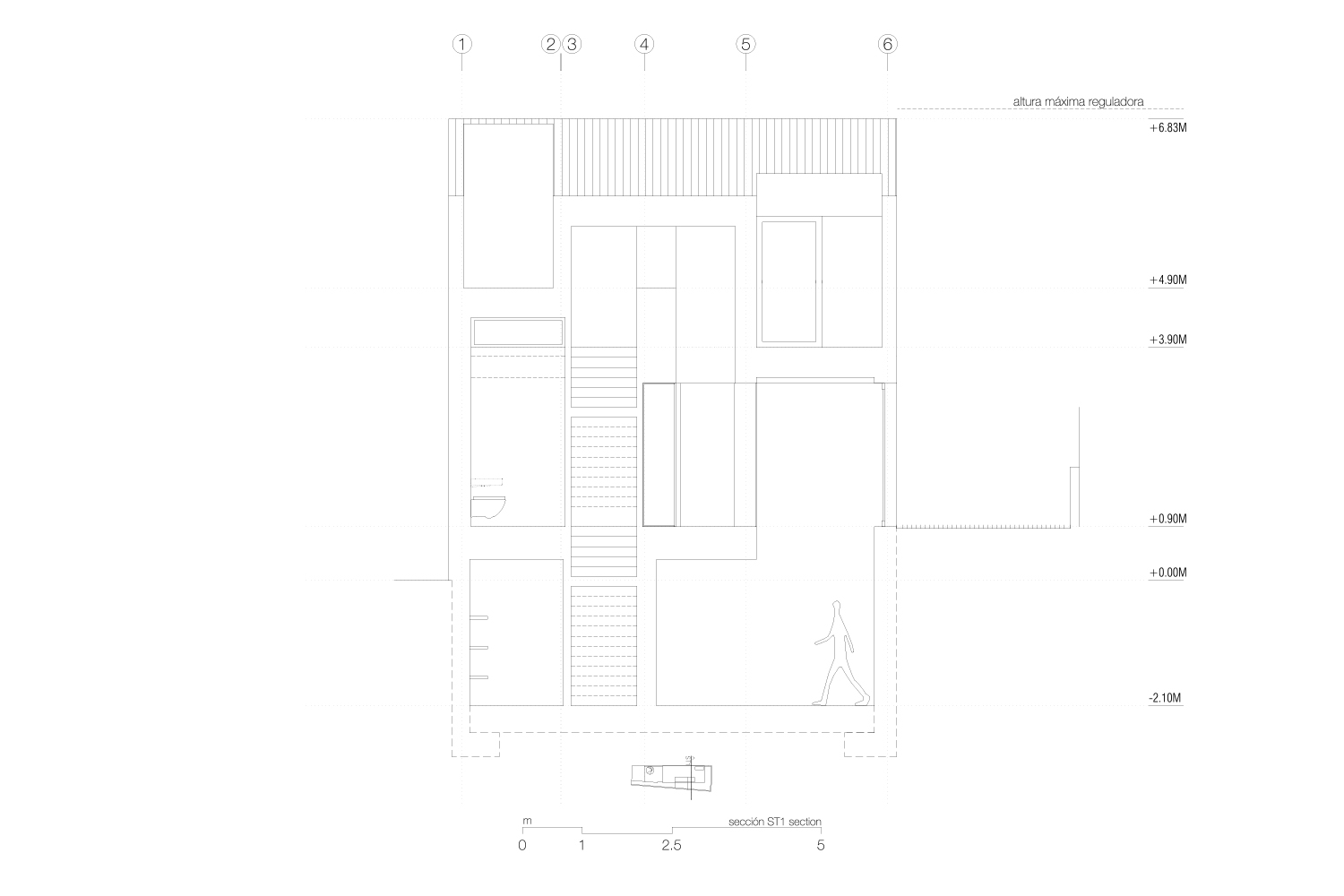
The house, for a young couple with two kids, is designed for a plot in the outskirts of Pamplona. Originally, the site was part of an extensive row housing development, which was interrupted by the 2008 economic downturn. The original regulations and code, however, were not changed. All decisions are aim to control limitations both in its dimensions and budget. The house is designed by basic scale manipulations and a sincere material implementation. A void by the entrance connects all three levels and allows the home to be read as a single space under a continuous roof which follows the slope of the original topography.

2016-2020

Credits
alcolea+tárrago

Photos: Rubén P. Bescós

Casa GP, Olloqui

La casa, para un matrimonio joven con dos hijos, se proyecta para un solar en una zona a las afueras de Pamplona. El solar formaba parte originalmente de una extensa promoción de viviendas en hilera que con la crisis de 2008 quedó interrumpida. El loteo y la normativa originales, sin embargo, no se modificaron. Así, todas las decisiones se dirigen a controlar las limitaciones de partida –dimensionales y de superficie permitida, y de medios económicos– a través de manipulaciones simples de la escala, una materialidad restringida y una puesta en obra sincera.

2016-2020

Créditos
alcolea+tárrago

Fotografías: Rubén P. Bescós